Gå till huvudinnehåll

Rustika material och fint ljusinsläpp

Med en ståtlig entré som välkomnar med stora glaspartier, skapas en varm och inbjudande känsla för hela huset. Välbyggd med rustika material och samtidigt fint ljusinsläpp bjuder detta kontorshus på ytor som gör det lätt för företaget med höga krav att trivas.

MIljöcertifierat Bra kommunikationer Flexibelt
Visionsbild av fastigheten i området.
Beräknad inflyttning Enligt överenskommelse
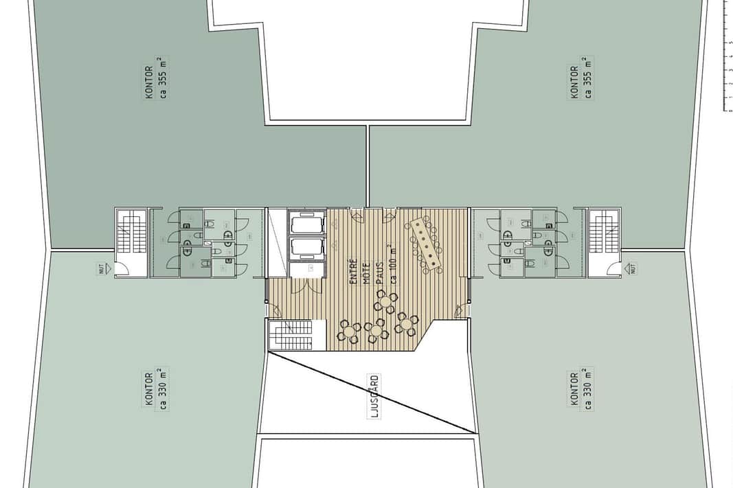
Lokalstorlek 300 - 1 400 kvm
Certifieringar Miljöbyggnad Guld
Antal våningsplan 5
Uthyrningsbar yta ca 7 000 kvm
Visionsbild av fastigheten.
Visionsbild av fastigheten.
Trädgren i närbild.

Helt eller delat våningsplan

Våningsplanen är ca 1 400 kvm stora, där minsta lokalen är ca 300 kvm. I Jöns Petter Borg finns alla möjligheter att skapa en stimulerande och produktiv arbetsmiljö anpassad efter behov. Vid ett tidigt skede har du alla möjligheter att påverka utformningen av ditt kontor. Berätta om dina önskemål, så tar vi fram en lösning tillsammans.

Bra kommunikationer

Jöns Petter Borg är beläget i södra Lund och läget ger ett oslagbart skyltläge och erbjuder parkering precis invid huset. Granne med fastigheten ligger Park Inn by Radisson som erbjuder, förutom hotellvistelse även konferensmöjligheter och restaurang. Mot centrum finns ett stort utbud av kommersiell och offentlig service tillgängligt. Närheten till avfarten från E22:an ger snabb och effektiv kommunikation för de bilburna besökarna. Från fastigheten är det endast 3 km till Lund C och 16 km till Malmö C. Inom gångavstånd från fastigheten finns busshållplatsen Råby trafikplats där flera regionbussar samt flygbussen till Sturup gör uppehåll.

Här ligger Jöns Petter Borg

Kontakta oss

Uthyrningschef Region Öresund

Thomas Brcic

Affärsutvecklare Region Öresund

Ola Gunnefur

Intresseanmälan

Hej!

Är du ute efter nya lokaler till din verksamhet, och vill ha mer information om den här fastigheten? Vi berättar gärna mer om de möjligheter som finns och ser fram emot att diskutera era behov och hur vi kan hjälpa till.

Skicka in en intresseanmälan så hör vi av oss inom kort.

Vi hörs!

All behandling av personuppgifter sker i enlighet med dataskyddsförordningen och annan dataskyddslagstiftning. Läs mer om GDPR

Varför Castellum?

Vi har lokalerna

Med ett av Sveriges största bestånd av kontorsfastigheter kan vi erbjuda ett stort utbud av kontor i olika lägen. I flera städer har vi också komplett utrustade, nyckelfärdiga kontor liksom kontorshotell och coworkingplatser med fullservice, tillträde dygnet runt och ett stort tjänsteutbud.

Vi jobbar hållbart

Som ett av de mest hållbara fastighetsbolagen hållbarhetscertifierar vi alla våra ny- och ombyggnationer. Vi erbjuder energieffektiva fastigheter med en trygg och hälsosam arbetsmiljö. Gröna avtal är standard, och energianvändningen i våra fastigheter är 50 procent under branschsnittet.

Vi tittar runt hörnet

För att möta morgondagens behov håller vi koll på den senaste arbetslivsforskningen, tar till oss nya rön, gör egna undersökningar och släpper den årliga trendrapporten Framtidens arbetsliv. Men den allra viktigaste framtidsspaningen sker i den dagliga dialogen med våra hyresgäster.

Vi är lokala och nära

Med ett starkt lokalt engagemang och egen personal på plats på alla våra orter kan vi erbjuda den där personliga kontakten och lokalkännedomen som vi vet är så viktig. Vi sköter om våra egna fastigheter, och som kund har du alltid tillgång till ett eget husteam som ser till att du trivs hos oss.